Wohnimmobilie > Maisonette-Wohnung
Zu Vermieten

Modernisierte 5-Zimmer-Maisonette Wohnung in Büchenau!

76646 Bruchsal
1.310 €

11881
1960
131 m²
5
  • Bitte füllen Sie bei Interesse die erforderlichen Angaben in der beigefügten Selbstauskunft aus und senden uns diese mit der unterschriebenen Datenschutzerklärung per Mail an: info@s-immo-kraichgau.de. Ohne Selbstauskunft kann Ihre Anfrage leider nicht bearbeitet werden.

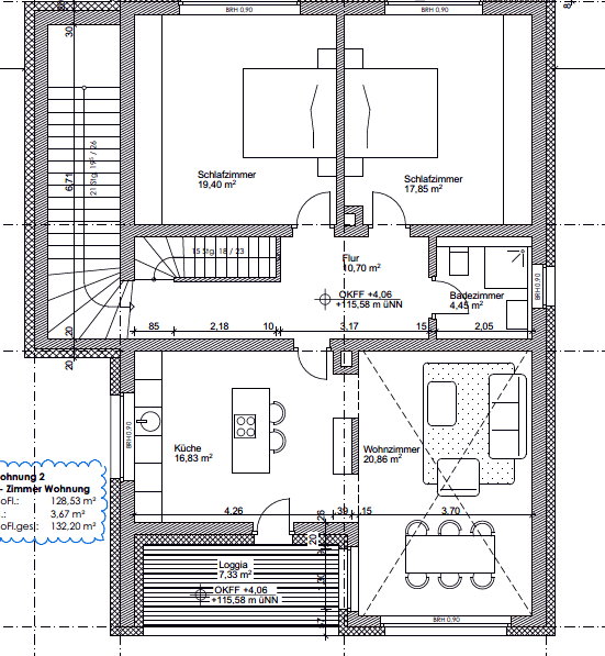
    Diese moderne und großzügige 5-Zimmer-Maisonettewohnung wurde im Jahr 2023 umfassend energetisch modernisiert und auf einen zeitgemäßen Wohnstandard gebracht. Die Wohnung befindet sich in einem gepflegten 2-Familien-Wohnhaus und überzeugt durch eine durchdachte, Raumaufteilung mit viel Licht und Platz. Die Wohnung ist durch einen eigenen Hauseingang zugänglich.

    Die erste Wohnebene umfasst drei gut geschnittene Schlafzimmer, ein modernes Tageslichtbad mit bodenebener Dusche sowie eine Küche, die genügend Platz für Ihre eigene Einbauküche bietet. Von hier aus gelangen Sie direkt auf die zur Wohnung gehörenden Loggia.

    Im Dachgeschoss stehen zwei weitere flexibel nutzbare Zimmer (z. B. Büro, Gäste- oder Hobbyraum) sowie ein zusätzliches WC zur Verfügung. In den Dachschrägen bieten integrierte Stauraumfächer zusätzlichen Platz. Die Kombination aus zwei Wohnebenen ermöglicht ein angenehmes Trennen von Wohnen, Arbeiten und Schlafen.
  • Flächen

    • Wohnfläche: 131 m²
    • Zimmer insgesamt: 5
    • Balkone: 1

    Zustand & Erschließung

    • Baujahr: 1960
    • Zustand: neuwertig
    • Letzte Modernisierung: 2023

    Sonstiges

    Für weitere Informationen sowie ein ausführliches Exposé kontaktieren Sie bitte den Anbieter.

    Die Angaben im Exposé beziehen sich auf die Informationen des Auftraggebers. Eine Gewähr für die vollständige Richtigkeit kann nicht übernommen werden. Die Abbildungen sind nicht maßstäblich und dienen der Illustration. Bei Flächenmaßen handelt es sich um Circa-Angaben vom Eigentümer oder Rohbaumaße. Das dargestellte Mobiliar ist nur ein beispielhafter Einrichtungsvorschlag.
    • Immobilie ist verfügbar ab: 01.12.2025
  • Individuelle Ausstattungsmerkmale:

    – Parkett
    – elektr. Rollläden
    – dreifach verglaste Fenster

    Die gesamte Ausstattung wurde im Zuge der energetischen Modernisierung im Jahr 2023 ebenfalls auf einen modernen, hochwertigen Stand gebracht. Die Wohnung verfügt u.a. über folgende Merkmale:

    – Fußbodenheizung in allen Räumen
    – Handtuchheizkörper in den Badezimmern
    – Balkon/Loggia
    – Stauraumfächer in den Dachschrägen
    – eigener Hauszugang
    – Parkettboden
    – Glasfaseranschluss

    • Art der Ausstattung: gehoben
    • Befeuerung: Elektro, Luft-Wärmepumpe
    • Bodenbelag: Fliesen, Parkett
    • Badausstattung: Dusche, Badewanne
    • DV-Verkabelung
    • Energieausweis-Art: Bedarf
    • Energieausweis gültig bis: 08.01.2034
    • Endenergiebedarf: 29,00 kWh/(m²*a)
    • Primärenergieträger: Elektroenergie, Umweltwärme
    • Energieeffizienzklasse: A+
    • Baujahr (Energieausweis): 1960
    • Energieausweis-Ausstellungsdatum: 08.01.2024
    • Energieausweis-Jahrgang: ab Mai 2014
    • Energieausweis-Gebäudeart: Wohngebäude
    Endenergiebedarf dieses Gebäudes
    29,00 kWh/(m²·a)
    A+
    A
    B
    C
    D
    E
    F
    G
    H
    0
    25
    50
    75
    100
    125
    150
    175
    200
    225
    >250
     
  • Die Wohnung befindet sich im Bruchsaler Stadtteil Büchenau, einer ruhigen und familienfreundlichen Wohnlage.
    Der Ortsteil bietet eine sehr gute Nahversorgung: Bäckerei, kleinere Geschäfte, eine Grundschule, Kindergarten sowie vielfältige Sport- und Freizeitangebote sind bequem erreichbar. Für größere Einkäufe oder weiterführende Schulen liegt das Bruchsaler Stadtzentrum nur wenige Minuten entfernt.
    Die Verkehrsanbindung ist ebenfalls attraktiv: Über die B35 sowie die nahegelegene A5 besteht eine schnelle Anbindung nach Karlsruhe, Heidelberg und in die umliegenden Gemeinden. Eine Bushaltestelle verbindet Büchenau regelmäßig mit der Bruchsaler Innenstadt und dem Bahnhof, der Anschluss an den Regional- und Fernverkehr bietet.

    • Nettokaltmiete: 1.310 €
    • monatl. Betriebs-/Nebenkosten: 395 €
    • Warmmiete: 1.705 €
    • Kaution: 3.930 €
    • Preise zuzüglich Mehrwertsteuer: nein

Ihr Ansprechpartner bei uns

Lukas Faißt

Immobilienverwalter
Sicher!